‭(450) 629-5112‬ 

Bertrand Système de Chauffage
CMMTQ
NovoClimat
CMEQ
Bertrand Goodman

Bertrand Système de Chauffage Inc 

4949 Boul. Lévesque Ouest, Laval, Qc, H7W 2R8 

(450) 629-5112‬ 

info@bertrandsolutions.com 

R.B.Q.  8002-4789-92 

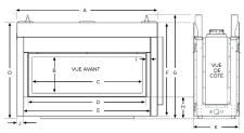
MQRB5143  Pleine vision 42" 

INFINITE Series 

Dimension du foyer